Le Théâtre Elisabéthain au Château D'Hardelot
Condette, France
The Elizabethan theatre at Château d'Hardelot provides 16th-century chamber opera space with 21st-century renewable technologies, pitch-perfect acoustics and a bold vision.
A scenic wall provides performers’ entrances and an upstage balcony. This can be manually tracked upstage when not required.
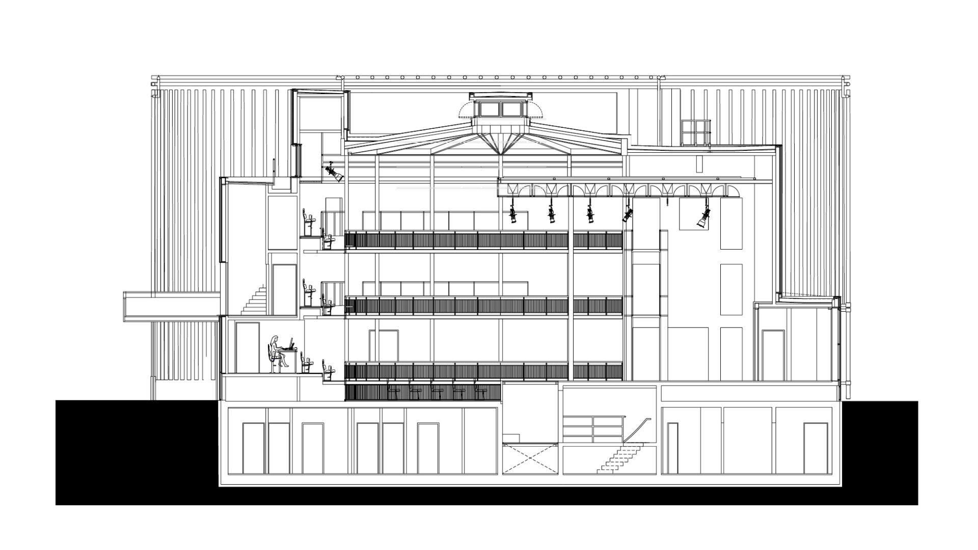
Located three miles from the English Channel, the Centre Culturel de l'Entente Cordiale Château d'Hardelot exists to promote the cultural relationship between Kent and the Pas-de-Calais. Events previously centred around a summer season of British and French drama, opera, music and comedy, in a temporary venue at the castle. Due to its success, this programme has been expanded year-round following the completion of the permanent 388-seat theatre adjacent to the castle.
Andrew Todd’s design for an Elizabethan theatre form makes extensive use of structural timber and surrounds the theatre with a cylindrical bamboo screen, which helps the building to dissolve into its surroundings. The building uses very little energy through the use of natural ventilation systems and low-energy lighting. Daylight within the auditorium can be blacked out with blinds – even the substage green room has a skylight to allow daylight to flood backstage.
A scenic wall provides performers’ entrances and an upstage balcony. This can be manually tracked upstage when not required. Removable downstage scenic columns and a forestage elevator complete the transformation from Elizabethan stage to lyric stage format.
We provided advice on acoustic design, designed technical performance systems and assisted with the wider building planning. The completed theatre is equipped with six motorised flying bars: as well as supporting technical theatre equipment, these can be rigged with simple timber reflectors to serve as acoustically-reflective surfaces and close off a layer of acoustic absorption above the grid. The control room at the back of the stalls seating features a control bench which (when seats are removed) can be pushed forward into the auditorium, creating an audio mix position without duplicating technical tielines.
Project Details
Client
Département du Pas-de-Calais
Project cost
€4.3m
Completed
2015
Awards
WAN Wood in Architecture Award 2017
Seating in the auditorium.
Credits
Architect
Main contractor
Stage Engineering Contractor
També
Stagelighting & Audiovisual Systems
CSE
Photography
Martin Argyroglo
Team Members
Related












