HOME
Manchester
With the merging of two of Manchester’s leading arts organisations comes a exciting new arts centre for the city.
A production of Funfair takes to the HOME stage (photo: Graeme Cooper).
HOME, a production centre for international contemporary art, theatre and film, was formed by the merger of two long-standing Manchester arts organisations - Cornerhouse and the Library Theatre Company. HOME commissions, produces and presents a programme of contemporary theatre, film, and visual art.
The new creative hub houses a 500-seat theatre, a 150-seat studio theatre, five cinemas, 500m2 of contemporary gallery space, an education space and informal and outdoor performance spaces, as well as foyers and state-of-the-art backstage facilities.
We came to the project following the appointment of the main contractor, and whilst the building was on site, we worked with Space Architecture and Wates to complete the design of the performance spaces.
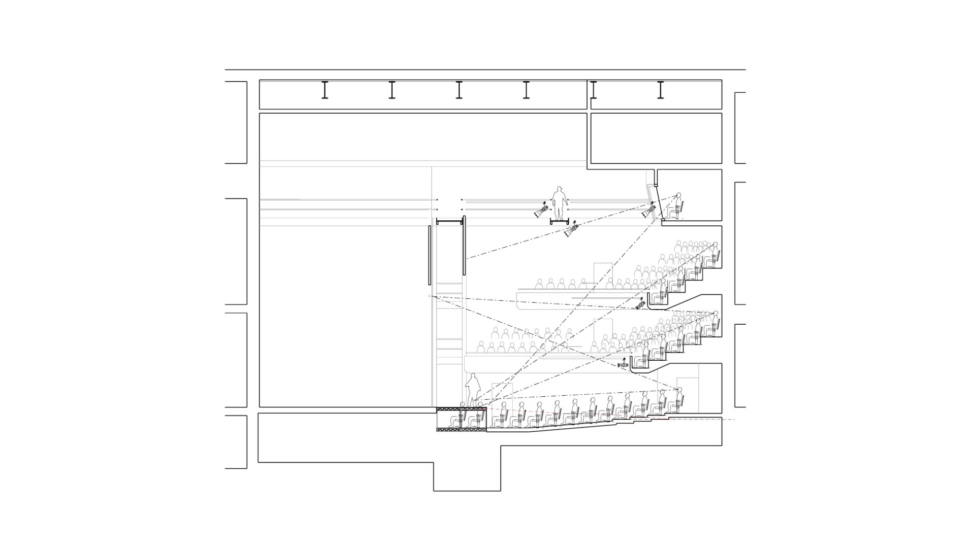
At the Client’s request we redesigned the proposed auditorium and stagehouse, due to the late nature of this change we had to insert this new design to a predetermined volume within the building’s design. The result is an intimate performance space - where no audience members is more than 15 metres from the stage - with sightlines and balcony levels that ensure an excellent connection between performer and audience by keeping the audience as close as possible to the performance.
We designed the stage engineering, stagelighting and audiovisual systems for both theatres as well as the cinemas.
Take a peek through the auditorium doors.
The counterweight flying system was designed to allow the easy insertion of show-specific automation equipment when required. This approach allows the venue to make the most of the latest automation equipment, when required by an event, without having the high capital cost & maintenance costs of having the system installed. There is provision for a mechanised orchestra pit lift should one be required in the future, at present a manual, rostra-based solution is in place.
The AV equipment is interlinked so performances can segue from auditoriums and cinemas to lobbies and circulatory space via speakers and projectors. Priority was given to ensuring that a comprehensive AV infrastructure was provided throughout the complex to ensure that the interconnectivity that would be required could be achieved without having to resort to the installation of temporary cabling.
The Stagelighting installation also prioritized the infrastructure ensuring that HOME is equipped to use the legacy equipment that has been transferred from Cornerhouse and The Library Theatre as well as the latest LED technology. Temporary cable routes and temporary power supplied have been provided to allow a wide range of event specific equipment to be brought in and connected to the installed systems in a quick & easy manner.
Project Details
Client
Manchester City Council
Project cost
£25m
Completed
2015
Awards
RIBA National Awards 2016
RIBA North West Regional Awards 2016
Production of The Oresteia at HOME (photo: Graeme Cooper).
Credits
Architect
Theatre Consultancy
Interior architect
Structural engineer / MEP consultant
Quantity surveyor
Davis Langdon / AECOM
Project manager
Main contractor
Team Members
Related
Its striking exterior acts like a beacon, while the welcoming public spaces and social areas within are designed to be inviting to all; it is a cultural home.
Press












