The Dorfman Theatre at the National Theatre
London, UK
The National’s Cottesloe Theatre was widely regarded as the most successful of its three spaces. After 35 years of continual use, of cramming ‘infinite riches in a little room’, the theatre was in need of significant refurbishment. Meet the Dorfman.
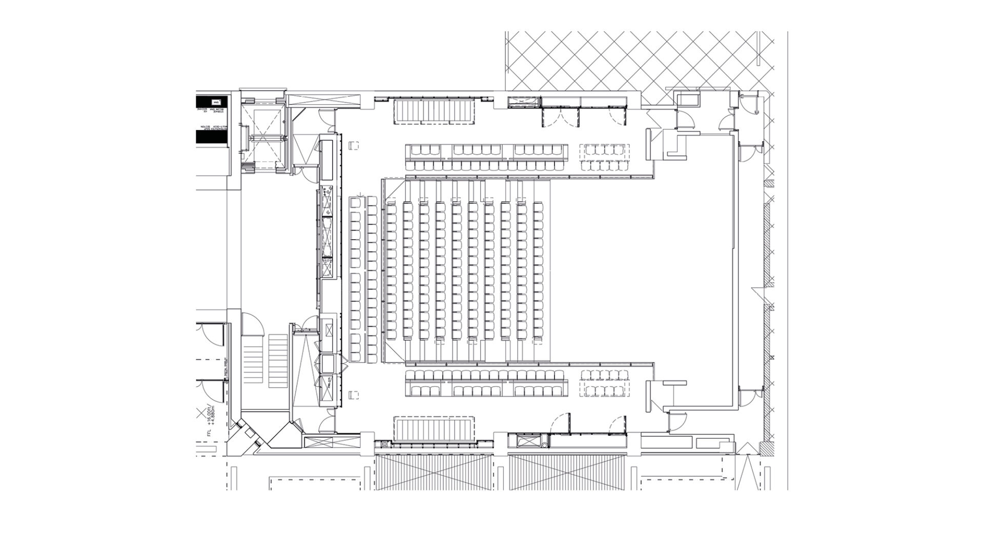
The end-stage seating capacity was increased by around 70 seats in steep rake; and by around 130 in shallow rake.
Established at the Old Vic theatre in 1963, The National Theatre of Great Britain relocated to its current Sir Denys Lasdun-designed home on the Southbank in 1976. The NT Future programme, initiated by the Executive team of Nicholas Hytner, Nick Starr and Lisa Burger, saw a comprehensive redevelopment of the entire complex which included an ambitious equipment upgrade of the Lyttelton and Oliver theatres, transforming the Cottesloe theatre into the flexible Dorfman theatre, a new temporary stage in the theatre’s forecourt.
The Cottesloe Theatre - uniquely flexible and adaptable, its range accommodated both the epic and the intimate - has now been transformed into the reconfigurable Dorfman Theatre. The old steeply-raked retractable seating unit is now gone: instead, new folding seats and Serapid-driven motorised elevators for each row of pit seating allow multiple seating configurations to be created faster and more efficiently than ever before. This versatility also allows a ‘shallow rake’ seating format to be created for the first time since the mid-1980s, and a flat floor to be achieved quickly by folding all the seats into their floorboxes and setting all elevators at stage height.
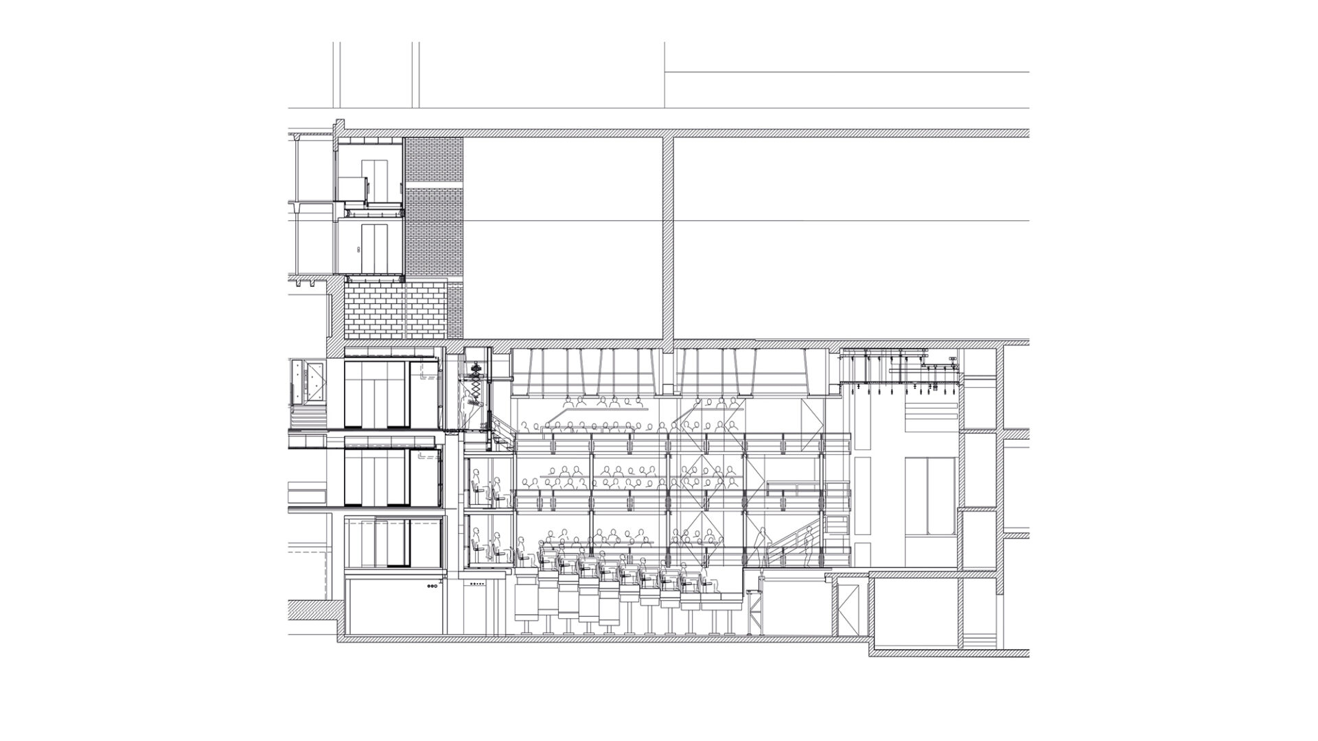
Technical provision is enhanced with new walkways over the auditorium, providing storage space and improving technicians' access and safety. A big improvement to sightlines - especially from side seats - was achieved simply by cranking-back the balcony rail. Overall, the end-stage seating capacity was increased by around 70 seats in steep rake; and by around 130 in shallow rake.
In a long-term partnership with the NT, Charcoalblue also designed a new computerised point hoist system in the Olivier and new lighting bar ladder winches in the Lyttelton Theatre; together with technical facilities in the Clore Learning Centre.
We were also design partners in the creation of the Temporary Theatre (aka The Shed) and theatre consultants for the refurbishment of the National Theatre Studio.
Demonstration of the bespoke seat folding mechanism.
Technical provision is enhanced with new walkways over the auditorium, providing storage space and improving technicians' access and safety.
Innovative solutions
The transformation of the seating formats can be achieved in just 30 minutes. A by-product of this is the rapid creation of flat-floor areas within the pit seating for directors, designers and operators to work from during technical rehearsals. Row spacing and seat widths were increased throughout, and the new seats are more generously upholstered. ‘Strapitains’ – seats which fold down into the aisle, the first use of such seats in the UK – leave sufficient aisle width for latecomers' access, and spring clear of the aisle when the occupant stands.
The control rooms on the first balcony were moved up a level, creating a new row of seating in their place whilst retaining an optional sound mixing position. Stagelighting and audiovisual systems was reworked where necessary, retaining as much of the existing installation as possible. In addition, new LED houselighting was installed throughout.
Take a tour of the Dorfman with the team.
Project Details
Client
National Theatre
Project cost
£70m
Completed
2014
Awards
The Stage Theatre Building of the Year 2016
RICS National Award 2016
RIBA National Award 2015
Credits
Architect
Structural Engineer
Flint & Neill
Construction Manager
Lend Lease
Quantity Surveyor
AECOM
Project Management
Seating Contractor
Stage Engineering Contractor
Delstar
Stagelighting & Audiovisual Systems
Northern Light
Photography
Philip Vile
Team Members
Related
...the National Theatre is one of London's best known and most divisive Brutalist buildings.
Press
Sir Denys, your theatres are still alive, your building has absorbed change remarkably.
Press
Denys Lasdun’s icon remains a brilliantly composed homage to Epidaurus.
Press
...this venerable modern monument is looking better than it has done for a long time, and in some ways ever.
Press













